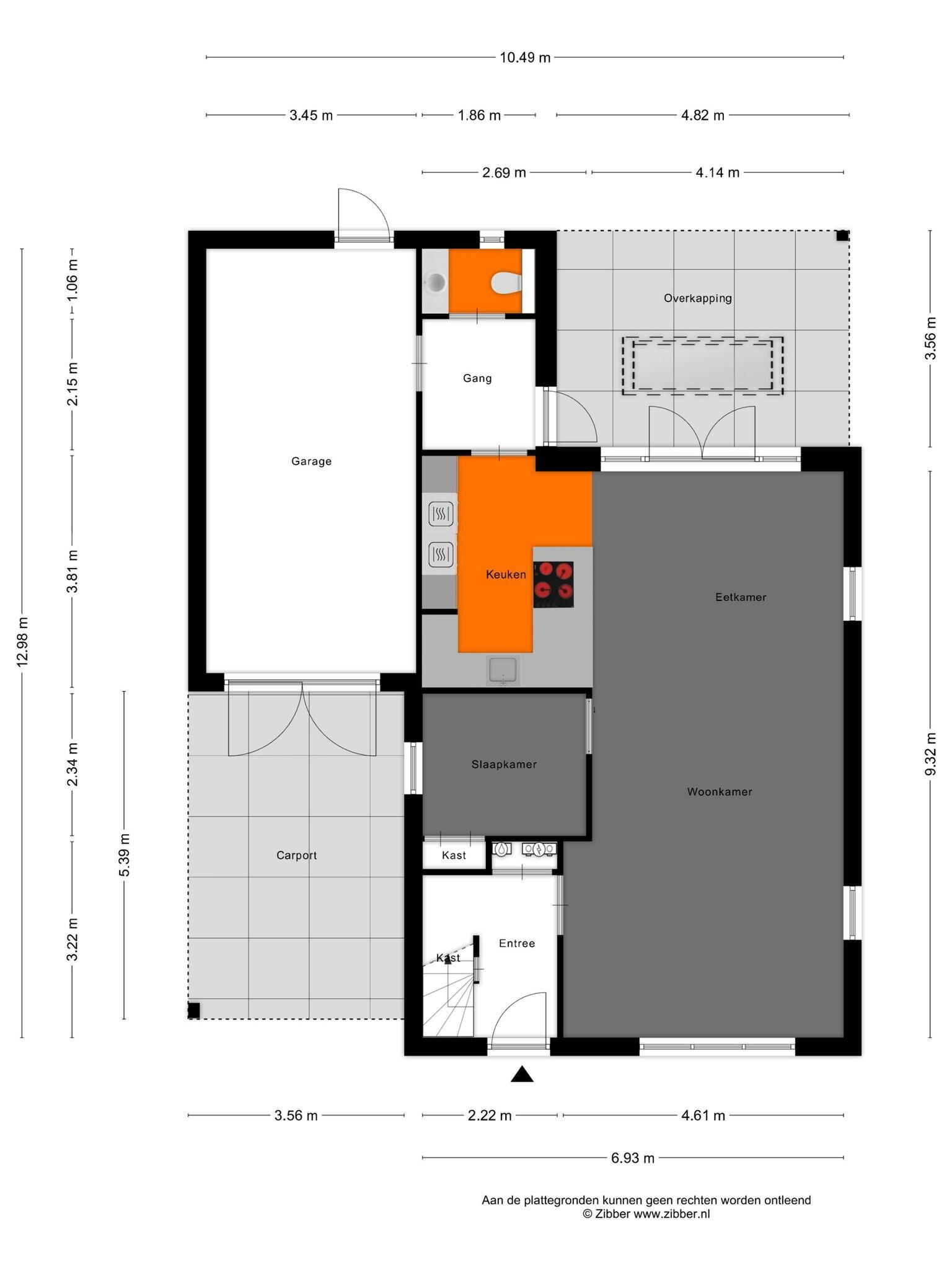
- Woonoppervlakte
- Circa 163 m²
- Perceeloppervlakte
- Circa 342 m²
- Bouwjaar
- Gebouwd in 2019
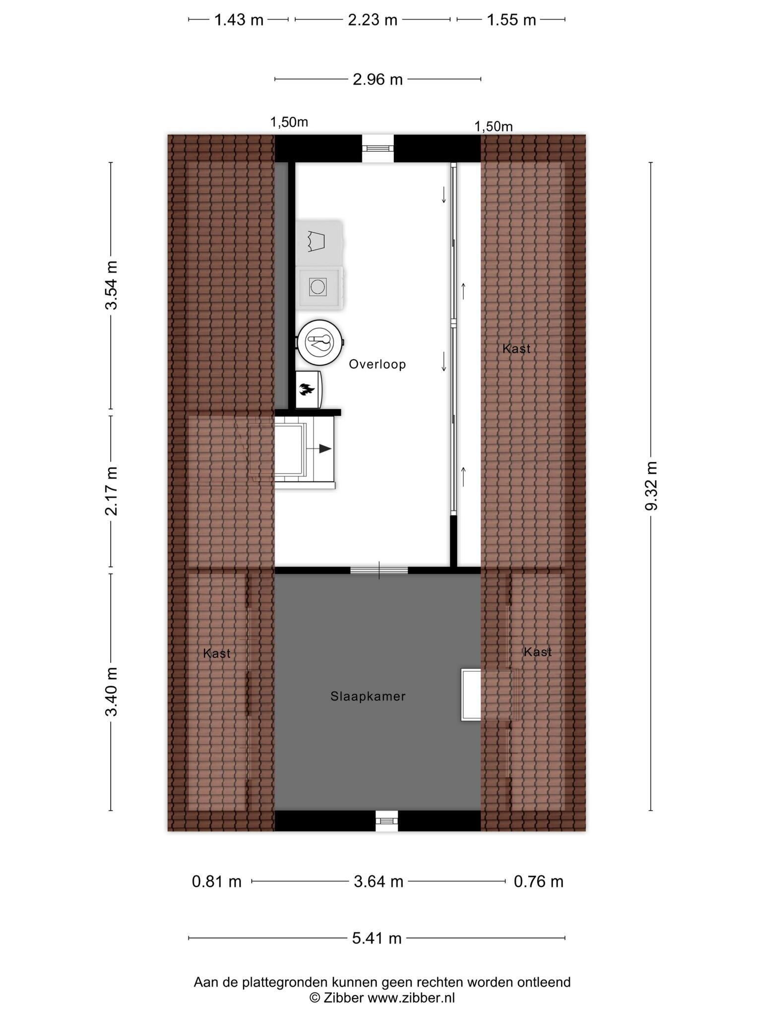
- Aantal kamers
- 6 kamers (4 slaapkamers)
Op zoek naar een instapklare woning met alle comfort van nu? Deze prachtige vrijstaande woning (2019) aan De Speelman 27 in Reusel biedt alles wat je zoekt: ruimte, luxe en een ideale ligging in een kindvriendelijke buurt.
Waarom deze woning jouw nieuwe thuis wordt:
- Energiezuinig wonen (label A) – optimaal geïsoleerd en klaar voor de toekomst.
- 19 zonnepanelen en zonneboiler.
- 3 slaapkamers op de 1e verdieping en 1 extra kamer op zolder.
- Luxe badkamer.
- Ruime woonkamer met speelkamer en luxe keuken met keukeneiland.
- Ruime garage – perfect voor auto, hobby’s of extra bergruimte.
- Overkapping in de tuin – heerlijk genieten van lange zomeravonden.
- Moderne afwerking – instapklaar en tot in de puntjes verzorgd.
- Kindvriendelijke omgeving – rustige straat met speeltuintjes en scholen in de buurt.
De woning is gelegen op een aantrekkelijke locatie in een rustige wijk, maar toch met alle voorzieningen binnen handbereik.
Kom kijken en laat u verrassen!
Wil je comfortabel en energiezuinig wonen in een geliefde buurt van Reusel? Dan is De Speelman 27 écht iets voor jou.
Overdracht
- Vraagprijs
- € 739.000 k.k.
- Status
- Verkocht
- Aanvaarding
- In overleg
Bouw
- Object type
- Eengezinswoning, vrijstaande woning
- Soort bouw
- Bestaande bouw
- Bouwjaar
- 2019
- Soort dak
- Zadeldak bedekt met pannen
Oppervlakte en inhoud
- Woonoppervlakte
- 163 m²
- Perceeloppervlakte
- 342 m²
- Inhoud
- 695 m³
- Overige inpandige ruimte
- 24 m²
- Externe bergruimte
- 10 m²
- Gebouwgeb. buitenruimte
- 36 m²
Indeling
- Aantal kamers
- 6 kamers (4 slaapkamers)
- Aantal woonlagen
- 3 woonlagen
- Voorzieningen
- Mechanische ventilatie, rolluiken, glasvezel kabel, zonnepanelen
Energie
- Energielabel
- A
- Energielabel registratie
- 09-12-2019
- Isolatie
- Dakisolatie, muurisolatie, vloerisolatie, dubbel glas, hr glas
- Verwarming
- Cv-ketel, vloerverwarming gedeeltelijk
- Warm water
- Cv-ketel, zonneboiler
- Cv ketel
- Remeha combiketel gas gestookt uit 2019 (eigendom)
Buitenruimte
- Ligging
- Aan rustige weg, in woonwijk, vrij uitzicht
- Tuin
- Achtertuin, voortuin
- Afmetingen achtertuin
- 130 m² (10 meter diep en 13 meter breed)
- ligging tuin
- Gelegen op het zuiden en bereikbaar via achterom
Bergruimte
- Schuur / berging
- Vrijstaande houten berging
Garage
- Soort garage
- Aangebouwd steen
- Capaciteit
- 1 auto
- Voorzieningen
- Elektra, stromend water
- Isolatie
- Dakisolatie, muurisolatie, vloerisolatie, dubbel glas
Parkeergelegenheid
- Soort parkeergelegenheid
- Op eigen terrein
Energieverbruik in Reusel
Energielabel deze woning
Energielabel A
Publicatie energielabel: 09-12-2019
Stroomverbruik per jaar
(Gemiddelde vrijstaande woning in Reusel)
Gasverbruik per jaar
(Gemiddelde vrijstaande woning in Reusel)
* Cijfers zijn afkomstig van het CBS en bedoeld als indicatie en kunnen verschillen voor deze woning
Indicatie hypotheeklasten
Eigen inleg:
Spaargeld / overwaarde
Rente:
Laagste 10-jaars rente
Laagste 10-jaars rente
2,76% - Centraal Beheer Groen... - NHG
2,98% - Centraal Beheer Groen... - 80%
Laagste 20-jaars rente
3,19% - Centraal Beheer Groen... - NHG
3,31% - Centraal Beheer Groen... - 80%
Laagste 30-jaars rente
3,34% - Centraal Beheer Groen... - NHG
3,47% - Centraal Beheer Groen... - 80%
Hypotheek:
Bruto maandlasten: € 0 p/m
Netto maandlasten: € 0 p/m
Hoe berekenen we dit?
Het rentepercentage is gebaseerd op de laagste 10-jaars vaste rente voor één hypotheekdeel. De vermelde rente (2.98% zonder NHG) is gecontroleerd op 27-08-2025. Deze berekening is gebaseerd op een annuïteitenhypotheek die volledig wordt afgelost, waarbij de maandlasten gedurende de gehele looptijd gelijk blijven. De werkelijke rente en netto maandlasten kunnen variëren, afhankelijk van uw persoonlijke situatie en de hypotheekverstrekker. Raadpleeg een financieel adviseur voor een nauwkeurige berekening en advies. Aan deze berekening kunnen geen rechten worden ontleend; het dient enkel als indicatie.
Documentatie
Kadastrale kaart
Leefomgeving
Kadaster
Brochure
Plattegronden PDF
WOZ waarderapport
BAG uittreksel
3D Plattegronden
Bekijk onze website
Bezichtiging
Bod uitbrengen
Waardebepaling
Zoekopdracht
Alles downloaden
Zonnegrenzen bekijken
Op de kaart
Inwoners in Reusel
Cijfers voor postcodegebied 5541
- Totaal aantal inwoners
- 8705 inwoners
- Mannen
- 51%
- Vrouwen
- 49%
Inwoners in Reusel
Cijfers voor postcodegebied 5541
- tot 15 jaar
- 17%
- 15 tot 25 jaar
- 10%
- 25 tot 35 jaar
- 25%
- 45 tot 65 jaar
- 27%
- 65 en ouder
- 21%
Huishoudens in Reusel
Cijfers voor postcodegebied 5541
- Eenpersoons zonder kinderen
- 29%
- Meerpersoons zonder kinderen
- 34%
- Huishoudens zonder kinderen
- 63%
Huishoudens in Reusel
Cijfers voor postcodegebied 5541
- Huishoudens met één kind
- 5%
- Huishoudens met meerdere kinderen
- 31%
- Huishoudens met kinderen
- 36%
Woningen in Reusel
Cijfers voor postcodegebied 5541
- Woningen voor 1945
- 7%
- Woningen tussen 1945 en 1965
- 15%
- Woningen tussen 1965 en 1975
- 17%
- Woningen tussen 1975 en 1985
- 17%
- Woningen tussen 1985 en 1995
- 16%
Woningen in Reusel
Cijfers voor postcodegebied 5541
- Woningen tussen 1995 en 2005
- 10%
- Woningen tussen 2005 en 2015
- 13%
- Woningen na 2015
- 4%
- Huurwoningen
- 20%
- Koopwoningen
- 80%
Overige in Reusel
Cijfers voor postcodegebied 5541
- Gemiddelde WOZ waarde
- € 287.000,-
- Personen onder de 65 met uitkering
- 5%
Overige in Reusel
Cijfers voor postcodegebied 5541
- Adressen per km²
- 783
- Stedelijkheid (schaal 1 op 5)
- 40%
Korte feiten over Reusel
Reusel (Brabants: Reuzel) is de hoofdplaats van de gemeente Reusel-De Mierden, in de Nederlandse provincie Noord-Brabant. Reusel is gelegen in regio de Kempen. Dichtstbijzijnde grote steden zijn Turnhout, Tilburg en Eindhoven. Reusel is een van de Acht zaligheden.
Ben Straatman Makelaardij
Indien u vragen heeft of u wilt een bezichtiging inplannen, dan kunt u gebruik maken van het formulier hiernaast. Er zal daarna op korte termijn contact met u worden opgenomen.
Contact opnemen
Ben Straatman Makelaardij
Welkom bij Ben Straatman Makelaardij, een eigentijds Kempisch makelaarskantoor. Of je nu op zoek bent naar een makelaar om je woning te verkopen, je droomhuis gevonden hebt, of hulp nodig hebt bij gedeeltelijke zelf-facilitatie van de aankoop of verkoop, bij ons ben je aan het juiste adres. Wij bieden de professionele ondersteuning en zekerheid die je zoekt.
Mijn naam is Ben Straatman, oprichter van Ben Straatman Makelaardij. Geboren in Eindhoven en sinds mijn zevende woonachtig in Reusel - een echte Kempenaar dus. Getrouwd met Sanne en trotse vader van vier kinderen (Neel, Mette, Vik en Nand), woon ik met mijn gezin in het prachtige buitengebied van Reusel. Naast mijn werk als gedreven makelaar, ben ik graag thuis bij mijn gezin, sport ik wanneer het kan, luister ik naar muziek en geniet van ons gezinsleven.
Wil je meer weten over wat wij voor je kunnen betekenen? Ik kom graag langs om de mogelijkheden te bespreken, of nodig je uit voor een kop koffie op ons kantoor.
Nieuwste reviews
-
Vincent van Goghlaan 8
Ben is een deskundige en vriendelijke makelaar met een no nonsense houding en werkwijze. Wij zijn erg tevreden.
-
Donkbeemd 19
Een integere, sympathieke man. Erg toegankelijk, goed bereikbaar en deskundig. Heeft het hele proces goed begeleid.
-
Kendersekker 30
Heel goed.Als wij contact met hem zochten, en op dat moment niet bereikbaar, dan kregen we een berichtje dat hij op een later moment zou rea...